EXCLUSIVE! Construction Land, Radeki Polje
1.057.500 Kn
- Code 27304
- Location Marčana
- Lot size 940 m2
- Distance from center 0
- Distance from sea 0
- Seaview No
- The degree of possible construction : n/a
- Land : Building
REAL ESTATE DESCRIPTION
In exclusive sale, we have an attractive building plot of a total of 940 m2 with a regular shape, located in a quiet and easily accessible area - the village of Radeki Polje in Loborika.
A special advantage of the plot is the two access roads, which provide greater flexibility for construction. The land is flat and is situated right next to an asphalt road with infrastructure (electricity, water) nearby.
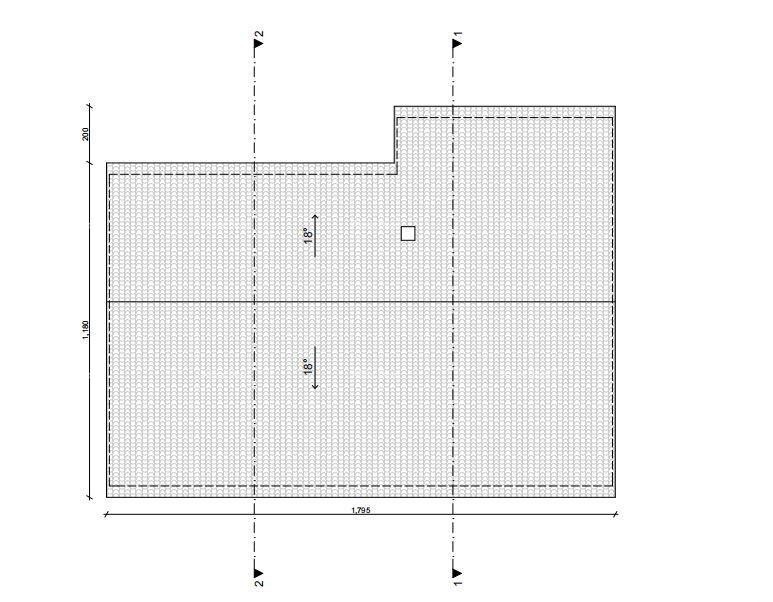
In collaboration with a local architect, an architectural project for the construction of a single-family house has been developed, and conditions for connection to the infrastructure have been obtained. Floor plans and dimensions are shown in the advertisement images and are available for viewing upon inspection of the land.
Ownership: clear, 1/1
For additional information, please contact:
+385 91 6115706
+385 98 420885
azra@almadominvest.com
WE RECOMMEND
Plot Marčana
(23271) Marčana161.600 €
Construction land with project and permit – Rakalj, 3 km from the sea
(24324) Marčana, Rakalj150.000 €
Building Plot for Sale, Loborika
(19930) Marčana, Loborika134.000 €
Plot Marčana
(14490) Marčana, Krnica154.500 €
Plot Marčana
(25484) Marčana, Loborika133.900 €
Building land for sale, Rakalj
(26976) Marčana, Rakalj130.000 €






