Land with building permit and paid utilities in Gočan
825.000 Kn
- Code 25438
- Location Barban
- Lot size 784 m2
- Distance from center 0
- Distance from sea 0
- Seaview No
- The degree of possible construction : n/a
- Land : Building
REAL ESTATE DESCRIPTION
We are selling a building plot of 784m2 with a building permit for the construction of a family house. Utilities are paid. The land is in beautiful nature surrounded by greenery.
The land has a neat access road from the asphalt.
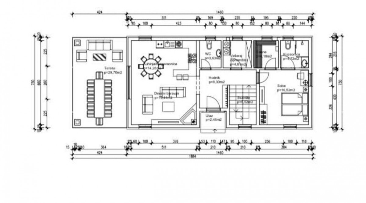
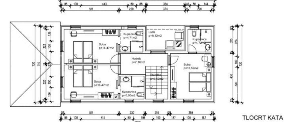
According to the project, a two-story house would be located on this land, which would consist of a covered entrance, hallway, staircase, kitchen with dining room, living room, bedroom with bathroom, separate toilet, sauna, laundry room and a spacious covered terrace on the ground floor. The upper floor of the house would consist of a hallway, three bedrooms, each with its own bathroom, and a loggia. There would be a swimming pool with 2 parking spaces on the plot.
Ownership is neat 1/1.
Price 110,000 + VAT
Azra Valjevac
+385 91 611 5706
+385 98 420 885
azra@almadominvest.com
WE RECOMMEND
Plot Barban
(14602) Barban129.000 €
Barban, Building Land for Sale, Total 3,440 m² (Building Land 780 m²)
(26932) Barban90.000 €
Sale - construction land with permit and started construction, near Barban!
(25704) Barban125.000 €
Sale of a construction plot with a building permit for the construction of a modern family house, near Barban!
(24325) Barban105.000 €
Close to Barban! Plot with project for a house!
(27253) Barban99.000 €
Building land, 1549m2, in a quiet location – Barban
(24332) Barban127.000 €






