Plot Tinjan
937.500 Kn
- Code 25777
- Location Tinjan
- Lot size 710 m2
- Distance from center 0
- Distance from sea 0
- Seaview No
- The degree of possible construction : n/a
- Land : Building
REAL ESTATE DESCRIPTION
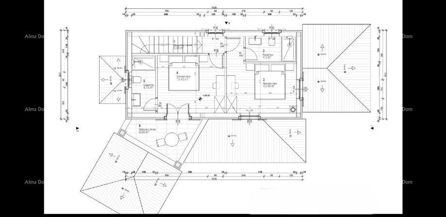
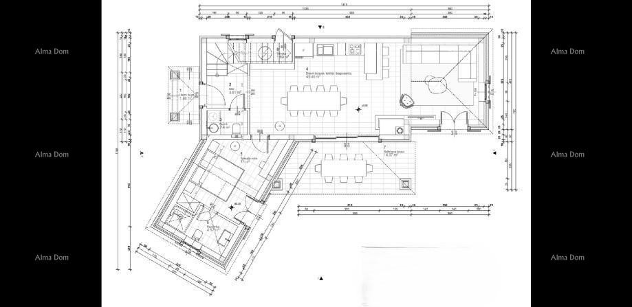
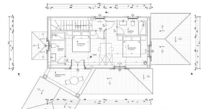
We are selling a building plot with a finished project for building a house with a swimming pool. The house has an area of 130 m2 on a plot of 710 m2. The ground floor consists of a hallway, kitchen, living room, toilet and bedroom with bathroom. On the first floor of the house are two bedrooms with bathrooms and a beautiful terrace.
From the kitchen there is a view of the garden and greenery, but also from the dining room there is a beautiful large terrace, swimming pool and sunbathing area as an extension of the interior, ideal for garden parties and evening relaxation. The house is maximally functional, with three bedrooms, a bathroom and a toilet, and an entrance hall for comfortable accommodation for a family or group of friends.
The house has enough space to park several cars.
Due to its location, usable area, proximity to amenities and the surroundings of holiday homes, the said property represents great potential for future buyers.
INFO:
Azra
+385 91 611 5706
+385 98 420 885
azra@almadominvest.com
WE RECOMMEND
Building land for sale, 3697 m2, near Motovun
(19475) Motovun65.000 €
Momjan – sale of construction land in an excellent location.
(27634) Buje85.000 €
Building land for sale, Barban
(17686) Barban90.000 €
Building land 650 m² – Marčana, Istria
(26352) Marčana69.000 €
Medulin – Agricultural Land Adjacent to the Construction Zone Boundary
(27653) Medulin72.000 €
Istria, Kršan, we are selling two building plots with permits.
(26517) Kršan66.500 €






