Prodaja stanova u novom stambenom projektu na eksluzivnoj lokaciji, 300 m od mora, Pula s5-z3
1.453.440 Kn
- Šifra 26872
- Lokacija Pula
- Površina objekta 47.85 m2
- Broj soba 1
- Kat Prizemlje
- Pogled na more Ne
- Udaljenost od centra0 m
- Udaljenost od mora300 m
- Broj etaža : 4
- Broj kupatila : 1
- Energetska učinkovitost : A+
- Godina izgradnje : 2024
DODATNO
- Parkiralište
OPREMLJENOST
- Klima
- Lift
OPIS NEKRETNINE
Novi stambeni projekt na eksluzivnoj lokaciji, Pula, STOJA.
Projekt Sisplac smješten je na jednoj od najboljih lokacija u Puli. Ova lokacija je savršena za stanovanje zbog sportsko-rekreacijskog sadržaja na tom području, blizine tržnice Veruda, uređenih parkova, te svih prirodnih blagodati, atraktivnih plaža, mora i najpopularnije šetnice u gradu Lungomare.
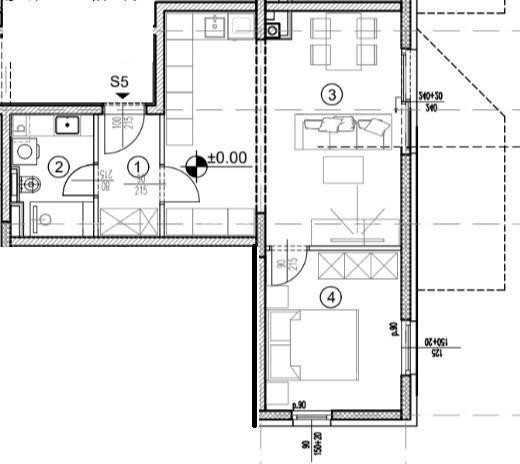
Stan S5, nalazi se u prizemlju zgrade, površine 47,85 m2.
Stan se sastoji od hodnika, dnevnog boravka sa kuhinjom i blagavaonom, spavaće sobe, kupaone.
Podovi u sobama će biti parket, a u ostalim prostorijama je karemaika. Zgrada posjeduje lift i podzemnu garažu.
* Napomena: stanu pripada garažno parkirno mjesto uz dodatnu nadoplatu, po cijeni od 20.000 eura.
Za dodatne informacije, molimo kontaktirajte:
Azra
+385 91 611 5706
+385 98 420 885
azra@almadominvest.com
PREPORUČUJEMO
Prodaja stanova u novom stambenom kompleksu, Štinjan! 15A
(23281) Pula, Centar217.687 €
Prodaja - Moderan stan u novom privatnom stambenom kompleksu u Šijani, Pula! E-D
(24887) Pula, Centar199.000 €
Pula – centar! Lijep i funkcionalno uređen stan s terasom u prizemlju zgrade.
(28738) Pula, Centar159.000 €
Prodaja stanova u izgradnji - novi stambeni kompleks, Pula!stan B zg A1
(27528) Pula, Centar165.000 €
Prodaja stanova s parkirnim mjestom u novom stambenom kompleksu, Štinjan! SLRA
(28304) Pula, Centar172.125 €
Prodaje se stan na odličnoj lokaciji u Puli-Veruda, blizina mora!
(27558) Pula, Centar191.000 €






