Vendita - Casa in pietra istriana con progetto e documentazione dedicata - vicinanza a Tinjan!
712.500 Kn
637.500 Kn
- Codice 27926
- Localita Tinjan
- Superficie immobile 73 m2
- Superficie particela 22 m2
- Numero di camere 3
- Vista sul mare No
- Distanza dal centro9000 m
- Distanza dal mare0 m
- Numero di piani : 2
- Numero di bagni : 1
- Efficienza energetica : Non specificato
- Anno di costruzione : n/a
DESCRIZIONE DELL IMMOBILI
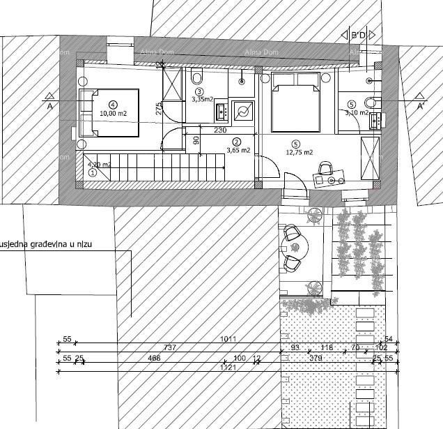
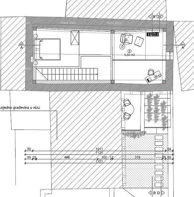
In vendita c'è una vecchia casa/rudere con un progetto di ristrutturazione già elaborato, su un terreno di 95 m², situata in un piccolo paese, vicino a Sv. Lovreča e Tinjan. Questa proprietà rappresenta un'opportunità ideale per un investimento: il progetto è già pronto e sono in corso le pratiche per il rilascio del permesso di costruzione.
Dati principali:
Superficie del rudere esistente: 73 m²
Cortile: 22 m²
Proiezione planimetrica dell'edificio esistente: 61,65 m² + scala esterna 11,10 m²
Dimensioni esterne: 11,24 x 5,26 m (scala 7,21 x 1,81 m)
Altezza fino alla cornice: 6,30 m
Il progetto di ristrutturazione prevede la costruzione di una casa familiare su tre piani (piano terra + primo piano + mansarda), con un'unità abitativa e accesso dal piano terra dal lato ovest. È previsto l'abbattimento di parte della scala esterna per un layout più funzionale e un giardino più ampio, mantenendo il carattere autentico della vecchia casa istriana, adattata allo stile di vita moderno.
Questa proprietà offre un'opportunità perfetta per creare una casa affascinante secondo i propri desideri, sia per la vita familiare, per le vacanze o come investimento attraente.
Per ulteriori informazioni, si prega di contattare:
Azra
+385 91 611 5706
+385 98 420 885
azra@almadominvest.com
SI CONSIGLIA
Casa in pietra d'Istria in vendita, Oprtalj
(24281) Oprtalj180.000 €
Bellissima casa familiare con vista mare – Veprinac, Opatija
(28457) Opatija950.000 €
Marčana e dintorni, proprietà istriana con più case in pietra
(27728) Marčana330.000 €
Poreč, Casa con appartamenti di 330m² con piscina
(27551) Poreč750.000 €
Una moderna ed elegante casa a un piano con piscina è in vendita, vicino a Rovigno
(26091) Rovinj680.000 €
PARENZO - Moderna casa bifamiliare con giardino privato (Casa B)
(25763) Poreč320.000 €






