Vodnjan. Hiša v gradnji z bazenom in Svetvinčenat, zemljišče z gradbenim dovoljenjem!
3.285.000 Kn
- Koda 25040
- Lokacija Svetvinčenat
- Površina objekta 111 m2
- Površina zemljišča 614 m2
- Število sob 3
- Pogled na morje Ne
- Oddaljenost od centra0 m
- Oddaljenost od morja0 m
- Število nadstropij : 2
- Število kopalnic : 2
- Energetska učinkovitost : A
- Leto izgradnje : 2024
DODATKI
- Parkirni prostor
OPREMA
- Klimatska naprava
OPIS NEPREMIČNINE
Prodajamo dve nepremičnini:
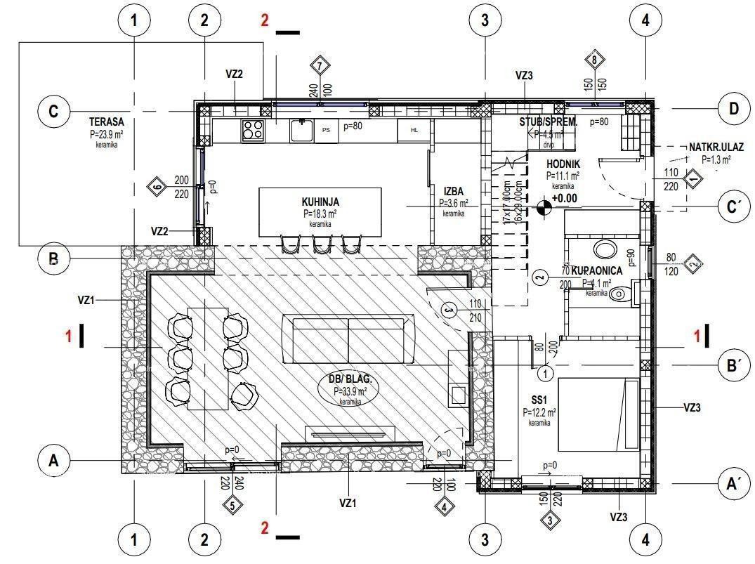
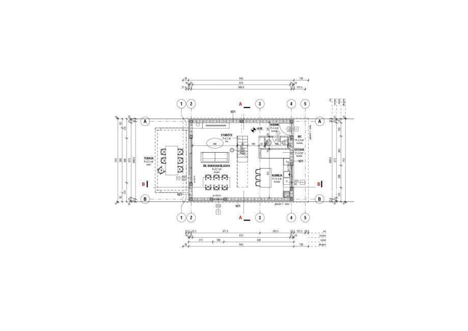
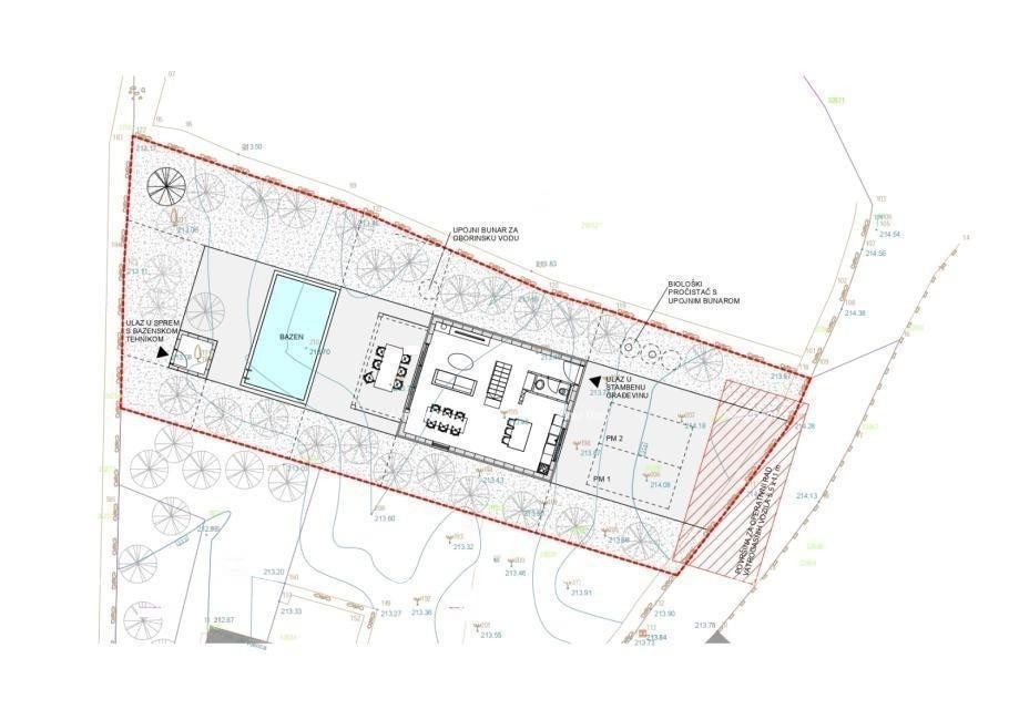
Vodnjan. Hiša v gradnji z bazenom, na mirni lokaciji na robu vasi. Hiša obsega pritličje (dnevna soba, jedilnica in kuhinja kot odprt prostor, spalnica, kopalnica, shramba) in prvo nadstropje (dve spalnici in kopalnica). Zunanja terasa je 23 m², bazen pa 28 m². Hiša ima dostop z javne ceste, ogrevanje je predvideno s toplotno črpalko.
Svetvinčenat. Gradbeno zemljišče v izmeri 545 m² z dovoljenjem za gradnjo hiše z bazenom. Na parceli sta predvideni hiša s pritličjem in nadstropjem, zunanji bazen, shramba in dve parkirni mesti. Priključki za elektriko in vodo so zagotovljeni.
INFO:
azra@almadominvest.com
+385 91 611 5706
jelena@alma-nekretnine.com
+385 98 323 264
PRIPORUČAMO
Prodaja kuće prizemnice s bazenom u fazi izgradnje
(27144) Svetvinčenat370.000 €
Renovirana kamena kuća s bazenom – mirno selo blizu Svetvinčenta
(28186) Svetvinčenat422.300 €
Hiša Svetvinčenat
(27974) Svetvinčenat499.000 €
Hiša Svetvinčenat
(25660) Svetvinčenat396.550 €
Prekrasno obnovljena istarska hiša s privatnim bazenom – , Svetvinčenat
(28451) Svetvinčenat407.000 €
The translation of the title to Slovenian is: "Rana mesta Svetvinčenat. Dvojna hiša obdana z zelenjem."
(27645) Svetvinčenat380.000 €






