Trisobno stanovanje S1 z vrtom v novogradnji v Kanfanarju
2.433.000 Kn
- Koda 27006
- Lokacija Kanfanar
- Površina objekta 114.33 m2
- Število sob 3
- Nadstropje Pritličje
- Pogled na morje Ne
- Površina zemljišča : 200 m2
- Oddaljenost od centra0 m
- Oddaljenost od morja0 m
- Število nadstropij : 3
- Število kopalnic : 2
- Energetska učinkovitost : A+
- Leto izgradnje : n/a
DODATKI
- Parkirni prostor
OPREMA
- Klimatska naprava
OPIS NEPREMIČNINE
Prodamo stanovanja v objektu, katerega gradnja se je pričela v 9. mesecu 2023. Projekt sestavljata dva povezana objekta s skupno 8 stanovanji, 3 stanovanja v enem in 5 v drugem objektu.
Stavbe se nahajajo v mirnem predelu Kanfanarja, obkrožene z luksuznimi vilami stran od prometnih cest.
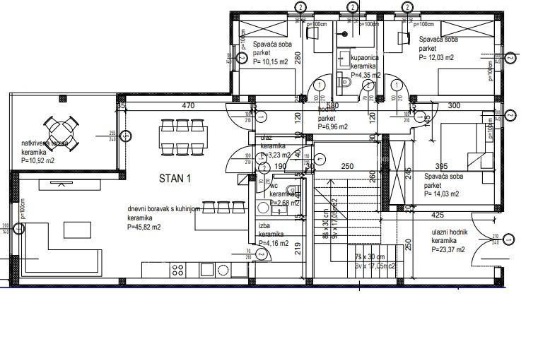
Trisobno stanovanje S1 se nahaja v pritličju stavbe s skupno 3 stanovanji, po eno stanovanje v vsaki etaži, ima bivalno površino 114,33 m2 z vrtom 200 m2 in je sestavljeno iz naslednjih prostorov:
dnevna soba + kuhinja + jedilnica - 45,82 m2
predsoba - 3,23 m2
hodnik - 6,96 m2
WC - 2,68 m2
kopalnica - 4,35 m2
spalnica 1 - 10,15 m2
spalnica 2 - 12,03 m2
spalnica 3 - 14,03 m2
soba/shramba - 4,16 m2
pokrita terasa - 10,92 m2
vrt - 200 m2.
Stanovanju pripada 1 parkirno mesto.
Kakovostna keramika je v vseh prostorih, razen v spalnicah in vhodnem delu, kjer bodo položene vrhunske vinilne talne obloge.
Gradnja se je začela v začetku jeseni 2023, dokončanje pa je predvideno konec leta 2024.
Sprejemamo rezervacije!
+385 91 611 5706
azra@almadominvest.com
+385 98 420 885
PRIPORUČAMO
Trisobno stanovanje S2 v 1. nadstropju novogradnje v Kanfanarju
(24592) Kanfanar339.000 €
Trisobno stanovanje S3 v 2. nadstropju novogradnje v Kanfanarju
(24983) Kanfanar286.500 €
Stanovanje v izgradnji S1/1, KANFANAR
(28214) Kanfanar267.000 €
Prodaja stanovanj v novogradnji, Kanfanar!
(27099) Kanfanar260.590 €
Stanovanje S4 v 1. nadstropju novogradnje v Kanfanarju
(27005) Kanfanar278.400 €
Prodaja stanovanj v novogradnji, Kanfanar!
(19570) Kanfanar276.000 €






